☆即日案内可能☆
☆宅地建物取引士、FP資格保有のプロのスタッフが対応します☆
物件のご案内や住宅ローンのサポート等はご希望に応じて
宅地建物取引士、FP保有スタッフが対応させて頂きますのでご安心下さい♪
お客様それぞれに合わせた最適なご提案を行わせて頂きます♪
物件の事、ローンの事、その他気になること等
どんな事でもお気軽にご相談下さい♪
0790-33-9666
クレシア不動産まで!
ご連絡お待ちしてます♪
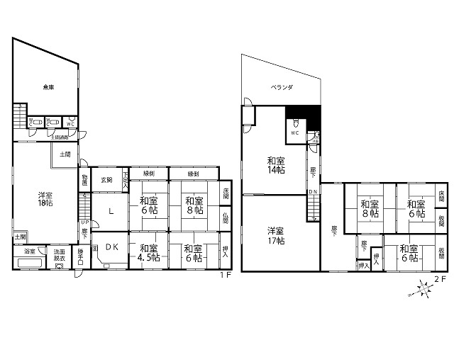
| 所在地 | 兵庫県西脇市黒田庄町船町 |
|---|---|
| 交通 | JR加古川線 船町口駅 徒歩12分 |
| 建物面積計測方式 | 公簿 |
| 建物/専有面積 | 276.37m² |
| 土地面積計測方式 | 公簿 |
| 土地面積 | 282.79m² |
| 間取り | 10LDK |
| 構造・階数 | 木造 / 2階 | 採光向き | 南東 |
| 築年月 | 1962/01 |
☆即日案内可能☆
☆宅地建物取引士、FP資格保有のプロのスタッフが対応します☆
物件のご案内や住宅ローンのサポート等はご希望に応じて
宅地建物取引士、FP保有スタッフが対応させて頂きますのでご安心下さい♪
お客様それぞれに合わせた最適なご提案を行わせて頂きます♪
物件の事、ローンの事、その他気になること等
どんな事でもお気軽にご相談下さい♪
0790-33-9666
クレシア不動産まで!
ご連絡お待ちしてます♪
| 向き | 南東 |
|---|---|
| 土地権利 | 所有権 |
| 地勢 | 平坦 |
| 地目 | 宅地 |
| 用途地域 | 無指定 |
| 都市計画 | 都市計画区域外 |
| 土地面積計測方式 | 公簿 |
| 設備① | 関西電力(電気), 個別プロパン(ガス), 公営(水道), 公共下水(汚水), 側溝 |
|---|---|
| 設備② | 専用バス |
| 取引態様 | 専任 |
|---|---|
| 引渡/入居時期 | 相談 |
| 現況 | 空家 |
| 物件番号 | 6987769857 |
| 情報提供日 | 2025/12/13 |
| 次回更新 | 2026/03/13 |
| 特記事項 | ※現状渡し ※上下水道引込済み ※上水道につきましては共有管を介して引込されております ※売主の契約不適合責任免責 ※境界非明示 ※残置物については売主にて撤去 敷地内の建物全て売買対象となります ※未登記建物、増築部分の更正登記は買主負担 ※建物の一部に雨漏りあります ※南東側道路:未判定道路(自治会管理道) ※南西側道路:私道の為、通行不可 |
||
|---|---|---|---|