中古戸建 神崎郡福崎町馬田 中古戸建

価格 190万円

JR福崎駅まで徒歩7分に位置する中古戸建

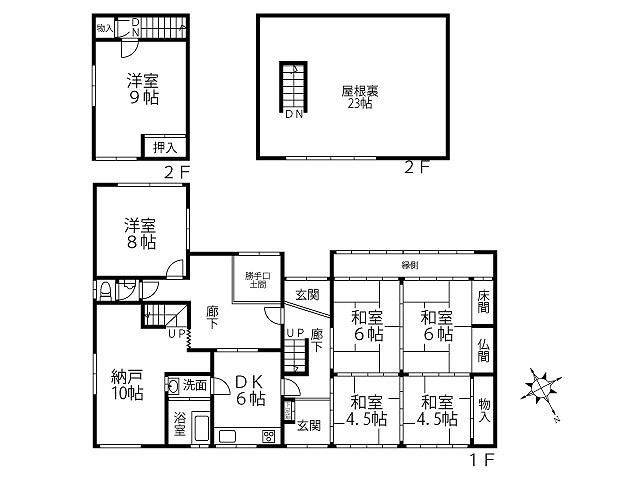
【間取】
【外観】
【外観】
【外観】
【玄関】
【玄関】
【キッチン】
【キッチン】
【風呂】
【内装】 1階洋室
【内装】 2階洋室
【内装】 和室
【内装】 和室
【内装】 和室
【内装】 縁側
(間取)
(外観)
(外観)
(外観)
(玄関)
(玄関)
(キッチン)
(キッチン)
(風呂)
1階洋室(内装)
2階洋室(内装)
和室(内装)
和室(内装)
和室(内装)
縁側(内装)

基本情報

所在地 兵庫県神崎郡福崎町馬田  
交通 JR播但線 福崎駅 徒歩11分
建物面積計測方式 実測
建物/専有面積 143.78m²
土地面積計測方式 公簿
土地面積 279.87m²
間取り 6DK
構造・階数 木造 / 2階
採光向き 南東
築年月 1962/04

セールスポイント

■JR福崎駅まで徒歩7分の立地

■南側に建物なく、庭先も広々

■会社の寮等含めて、多用途で検討ください

物件詳細情報

向き 南東
土地権利 所有権
地勢 平坦
接道状況 1 / 幅員: 3.0m
地目 宅地
用途地域 第二種中高層住居専用
都市計画 市街化区域
建ぺい率 60%
容積率 200%
セットバック
駐車場 月/空有
土地面積計測方式 公簿
設備① 関西電力(電気), 個別プロパン(ガス), 公営(水道), 公共下水(汚水), 側溝, 汲み取り, 縁側, 庭
取引態様 専任
引渡/入居時期 相談
現況 空家
物件番号 69877697029
情報提供日 2025/12/27
次回更新 2026/03/31
特記事項 ※売主の契約不適合責任及び設備補修義務免責
※境界非明示
※残置物は売主にて引渡しまでに撤去します
※トイレは現況汲取りになっています
※上水道分担金及び下水道負担金は納付済み
※建物面積は各種資料を基に記載
※現況未登記部分もあり、記載内容と異なる場合があることをご了承下さい
※未登記建物あり。売主にて建物更正登記の上で引渡し

▼この物件のお問い合わせはこちらから▼

【個人情報の取扱いについて】

本フォームからお客様が記入・登録された個人情報は、資料送付・電子メール送信・電話連絡などの目的で利用・保管し、第三者に開示・提供することはありません。詳しくはプライバシーポリシーをご覧ください。