物件のご案内や住宅ローンのサポート等はご希望に応じて
有資格スタッフ(宅地建物取引士、賃貸不動産経営管理士、FP、住宅ローンアドバイザー等)が
対応させて頂きますのでご安心下さい‼
お客様それぞれに合わせた最適なご提案を行わせて頂きます。
物件の事、ローンの事、その他気になること等どんな事でもお気軽にご相談下さい♪
☎0790-33-9666
クレシア不動産まで!ご連絡お待ちしてます♪
基本情報
| 所在地 | 兵庫県小野市王子町 |
|---|---|
| 交通 | 神鉄粟生線 葉多駅 徒歩23分 |
| 建物面積計測方式 | 公簿 |
| 建物/専有面積 | 98.01m² |
| 土地面積計測方式 | 公簿 |
| 土地面積 | 81.52m² |
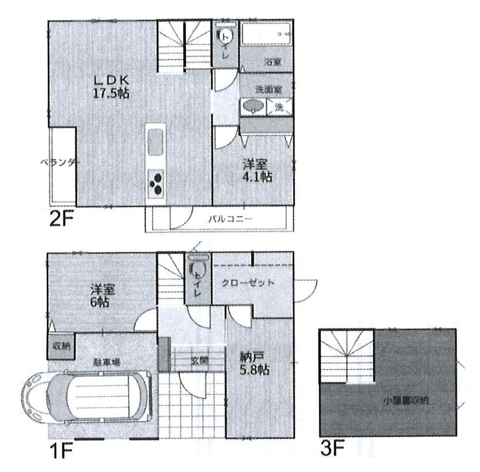
| 間取り | 3SLDK |
| 構造・階数 | 木造 / 2階 |
| 築年月 | 2023/10 |
セールスポイント
物件詳細情報
| 土地権利 | 所有権 |
|---|---|
| 地目 | 宅地 |
| 用途地域 | 第一種住居 |
| 都市計画 | 市街化区域 |
| 建ぺい率 | 60% |
| 容積率 | 200% |
| 土地面積計測方式 | 公簿 |
| 設備① | 関西電力(電気), 公営(水道), 公共下水(汚水), オール電化 |
|---|---|
| 設備② | 洋式トイレ, 室内洗濯機置き場, IHコンロ |
| 設備・条件③ | バス専用 トイレ専用 バス・トイレ別 TVドアホン カードキーシステム 公営水道 排水下水 駐車場有 フローリング オール電化 |
| 取引態様 | 一般 |
|---|---|
| 引渡/入居時期 | 相談 |
| 現況 | 空家 |
| 物件番号 | 69895725003 |
| 情報提供日 | 2026/02/20 |
| 次回更新 | 2026/05/19 |
| 特記事項 | ※上水道新規加入分担金:要 ※下水道受益者負担金:要(550円/㎡) ※新築から未入居の物件です。 | ||
|---|---|---|---|











