☆即日案内可能☆
☆宅地建物取引士、FP資格保有のプロのスタッフが対応します☆
物件のご案内や住宅ローンのサポート等はご希望に応じて
宅地建物取引士、FP保有スタッフが対応させて頂きますのでご安心下さい♪
お客様それぞれに合わせた最適なご提案を行わせて頂きます♪
物件の事、ローンの事、その他気になること等
どんな事でもお気軽にご相談下さい♪
0790-33-9666
クレシア不動産まで!
ご連絡お待ちしてます♪
| 所在地 | 兵庫県加西市田原町 |
|---|---|
| 交通 | 北条鉄道 田原駅 徒歩3分 |
| 建物/専有面積 | 222.39m² |
| 土地面積計測方式 | 公簿 |
| 土地面積 | 1207.35m² |
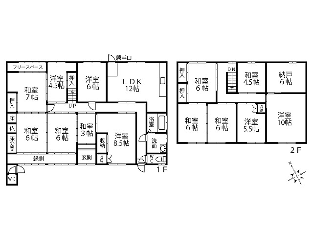
| 間取り | 13DK |
| 構造・階数 | 木造 / 2階 |
| 築年月 | 1959/01 |
☆即日案内可能☆
☆宅地建物取引士、FP資格保有のプロのスタッフが対応します☆
物件のご案内や住宅ローンのサポート等はご希望に応じて
宅地建物取引士、FP保有スタッフが対応させて頂きますのでご安心下さい♪
お客様それぞれに合わせた最適なご提案を行わせて頂きます♪
物件の事、ローンの事、その他気になること等
どんな事でもお気軽にご相談下さい♪
0790-33-9666
クレシア不動産まで!
ご連絡お待ちしてます♪
| 地勢 | 平坦 |
|---|---|
| 地目 | 宅地 |
| 用途地域 | 無指定 |
| 都市計画 | 非線引き区域 |
| 建ぺい率 | 60% |
| 容積率 | 200% |
| 土地面積計測方式 | 公簿 |
| 設備① | 関西電力(電気), 公営(水道), 公共下水(汚水) |
|---|
| 取引態様 | 専任 |
|---|---|
| 引渡/入居時期 | 相談 |
| 現況 | 空家 |
| 物件番号 | 69886774098 |
| 情報提供日 | 2026/04/11 |
| 次回更新 | 2026/07/10 |
| 特記事項 | ※本物件一部未登記家屋につき、課税台帳を基に記載させて頂いております、現況を優先するものとします。 ※別途家屋有 ①倉庫、鉄骨造 昭和56年築 143.96㎡ ②居宅 大正10年築 29.97㎡ ※売主の契約不適合責任は免責 ※境界非明示取引 ※室内残置物は売主にて撤去 ※未登記建物の表示登記、建物更正登記、保存登記等は売主負担 ※滅失登記、抹消登記は売主負担 ※用途変更が必要な場合 買主負担 ※本物件は、加西市特定用途制限地域「集落活力再生地区」に該当します。 ※告知事項あり。 |
||
|---|---|---|---|