買う
借りる
売る/貸す
事業内容
会社案内
新着情報
スタッフ紹介
お問い合わせ
0790-33-9666
10:00〜18:00(定休日:火・水)
お問い合わせ
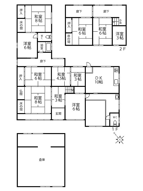
物件詳細
BUY
Author
crecer
Posted on
2025年12月1日
2025年12月23日
Categories
成約済
Fudousan Plugin Ver.6.0.2